
Ëþ¶û̹½Ç

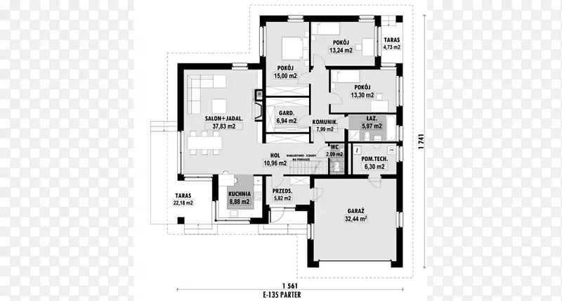
Æ½ÃæÍ¼ÏßÉè¼Æ

ľÖʵذå

ľ°åµØ°å±³¾°Ç½ÎÆÀí

Ë®Äàǽ±ÚÓëË®ÄàµØ°åש

½ººÏ°å²úÆ·Éè¼ÆÄ¾²ÄµØ°å-DIYÊÒÄÚÉú³¤Ïä

´Éש¾ØÐεذåͼ°¸-LG±ùÏäPNGÕÕÆ¬

ľµØ°å

ľµØ°å×éÖ¯²ãѹ°åµØ°å.¼ªÀ¼µÂ

Ç½Ãæb&cµØ°å´¢´æÔ¡ÊÒ´Éש-Ô¡Êҵذå

µØ×©Ê½Ñù-°×É«´²

Â¥ÌÝ Ä¾Í· µØ°å

Ӳľ½ººÏ°å½ÇÉè¼Æ

ÒÎ×ÓµØ×©Í¼°¸-ɳ·¢

ľµØ°åÎÆÕÂӲľµØ°åÎÆÀí

ľµØ°å¿§·È×À´²Í·¹ñ³éÌëľ²Ä

Æ½ÃæÍ¼Æ·ÅÆ¹ã³¡½ÖµØ°å

×°ÐÞʯ²Ä´óÀíʯµØ×©

µØ°å½Ú

»ù°åÍÁľ²ãѹ°åµØ°å

µØ°å¡¢½ººÏ°å¡¢È¾É«Ó²Ä¾-ľ²Ä

µØ°åÏß½ººÏ°å¼Ð½ÇÏß

ѹÁ¦µæÈ¦k rcherµØ°åÇå½àµØ°åÏ´µÓÆ÷

²£Á§µçµÆ

Ï´Ò»úµØ°åÎü³¾Æ÷ÇåÏ´

Beaumont´Éש³ø·¿»ìÄýÍÁ°åµØ°å-ÇÉ¿ËÁ¦ÈÛÑÒ

Á½¿é¸´ºÏѹËõ°æ

¿§·È×ÀµæÊ½²ÍÌü¼Ò¾ß.×À×Ó